Neubau von 2 Mehrfamilienhäuser mit jeweils 5 Wohneinheiten
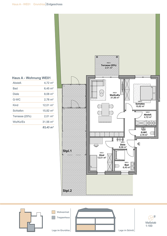
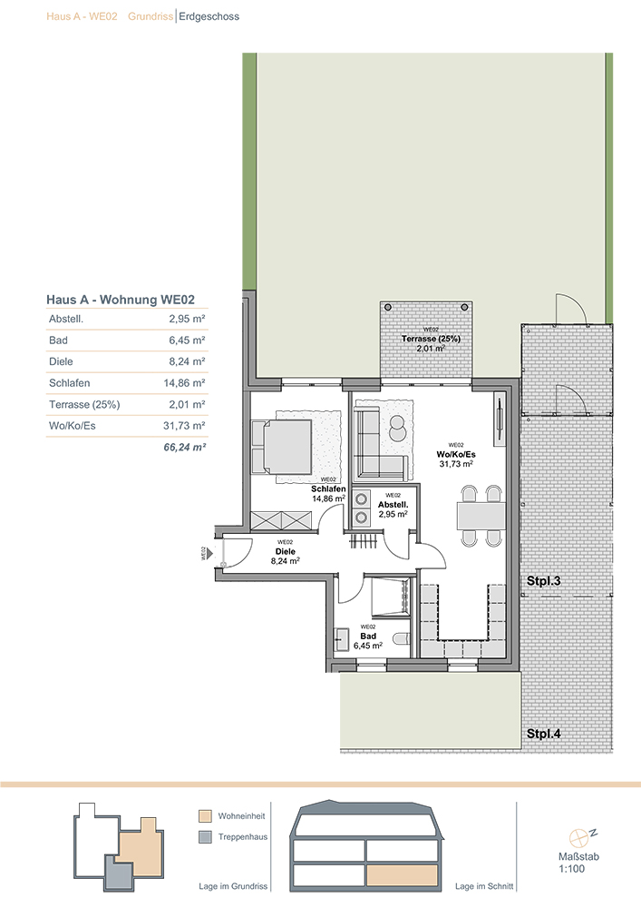
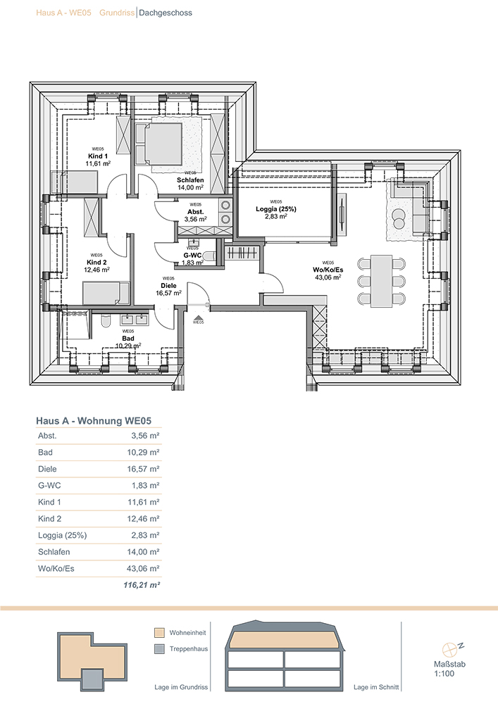
In Mühlen im Jacobsgrund entstehen zwei hochwertige Mehrfamilienhäuser mit jeweils 5 Wohneinheiten, insgesamt 10 Carportanlagen und 10 PKW-Stellplätzen. In jedem Haus befinden sich zwei 3-Zimmer-Wohnungen mit 83,5 m² Wohnfläche, zwei 2-Zimmer-Wohnungen mit 66 m² Wohnfläche und eine Penthouse Wohnung mit 116 m². Alle Wohnungen sind nach Süden ausgerichtet und verfügen über bodentiefe Fenster und Terrassen bzw. Balkone und Loggien. Die Häuser werden nach dem Effizienzhausstandard 40 mit dem Nachhaltigkeitssiegel QNG errichtet. In jedem Haus erfolgt die Wärmeversorgung über eine Luft-Wasser-Wärmepumpe. Alle Wohnungen verfügen über Fußbodenheizungen und sind über einen Aufzug barrierefrei zu erreichen. Die Wohnungen werden schlüsselfertig einschließlich sämtlicher Boden- und Wandbeläge übergeben.








